案例實拍:7款造型時尚、戶型好的農村別墅, 堪稱農村建房典范
準備建房的朋友,在拿到房屋設計圖時都會在腦中想象這套房子建成后的樣子。想象它會不會和效果圖一樣精致,建出來是否大氣,這些都是值得建房的朋友期待的事情。今天小編整理了一些我們客戶發來的建成后的實拍圖,大家可以和效果圖對比一下。讓大家在建房時候心里有個底,如有喜歡的,歡迎聯系我們。
編號: DC0103
層數: 二層
結構形式: 磚混結構
主體造價: 18-24萬
開間: 12.04米
進深: 8.84米
占地面積: 103.4平方米
建筑面積: 206.79平方米


一 層:客廳、臥室、廚房、餐廳、雜物間、衛生間
二 層:休息廳、小客廳(附陽臺)、臥室(附陽臺)、2臥室、衛生間
圖紙預覽:


建房實拍案例

編號: DC0149
層數: 三層
結構形式: 磚混結構
主體造價: 35-40萬
開間: 15.6米
進深: 10.3米
占地面積:143.38平方米
建筑面積:435.4平方米


一 層:堂屋、客廳、臥室(附衛生間)、廚房、餐廳、衛生間、車庫
二 層:起居室、臥室(附陽臺)、臥室(附衛生間)、2臥室、衛生間、陽臺
三 層:起居室、娛樂廳、臥室(附衛生間)、書房(附陽臺)、衛生間、露臺
圖紙預覽:



建房實拍案例

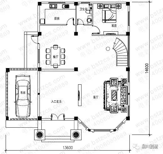
編號: DC0205
層數: 三層
結構形式: 框架結構
主體造價: 25-30萬
開間: 13.4米
進深: 10.2米
占地面積: 119平方米
建筑面積: 297.6平方米


一 層:入口玄關、客廳、廚房、餐廳、衛生間、車庫
二 層:起居室、臥室(附陽臺)、臥室、書房、衛生間
三 層:起居室、主臥(附陽臺)、臥室(附陽臺)、書房、衛生間、露臺
圖紙預覽:



建房實拍案例

編號: DC0207
層數: 二層
結構形式: 磚混結構
主體造價: 18-22萬
開間: 11.4米
進深: 10.3米
占地面積: 105.95平方米
建筑面積: 210平方米


一 層:走廊、客廳、臥室、廚房、餐廳、衛生間
二 層:客廳(附陽臺)、臥室(附陽臺)、臥室(附書房)、臥室、衛生間
圖紙預覽:


建房實拍案例

編號: DC0226
層數: 三層
結構形式: 框架結構
主體造價: 36-42萬
開間: 13.6米
進深: 14.6米
占地面積: 156.09平方米
建筑面積: 393.15平方米


一 層:入口玄關、客廳(中空)、臥室、廚房、餐廳、衛生間、車庫
二 層:主臥(附書房,衛生間,陽臺)、臥室(附書房,陽臺)、臥室、衛生間
三 層:活動廳(附露臺)、主臥(附衛生間,2露臺)、臥室(附書房,陽臺)、臥室、衛 生間
圖紙預覽:


建房實拍案例

編號: DC0284
層數: 三層
結構形式: 框架結構
主體造價: 50萬以上
開間: 23.2米
進深: 12.1米
占地面積: 274.14平方米
建筑面積: 732.07平方米


一 層:客廳(中空)、老人房(附衛生間)、臥室、廚房、餐廳、衛生間
二 層:起居室、主臥(附衛生間,陽臺)、2臥室、書房、衛生間
三 層:健身房、主臥(附衛生間,陽臺)、臥室、衛生間、露臺
圖紙預覽:



建房實拍案例

編號: DC0301
層數: 三層
結構形式: 框架結構
主體造價: 50萬以上
開間: 19米
進深: 11.1米
占地面積: 203.04平方米
建筑面積: 625.05平方米


一 層:客廳、臥室(附衛生間)、廚房、餐廳、儲藏室、衛生間
二 層:客廳、臥室(附衛生間,陽臺)、2臥室、衛生間
三 層:客廳、臥室、娛樂室、衛生間、露臺
圖紙預覽:



建房實拍案例

以上實拍圖都是來自客戶的真實建房案例,客戶也會根據自己的需求對外墻裝飾做稍微的調整,但是從以上這么多款案例來看,建出來的效果還是很令人驚艷的。對于以上幾款圖紙和案例,你們最中意哪款呢?歡迎留言哦~
.jpg)
本文由別墅圖紙超市編輯發布,如需了解更多,可登錄網站主頁http://www.qingshandinghua.com/,或者撥打我們的免費電話400-8080-889在線咨詢。
>>>>推薦閱讀:建房自述:誰說現在建房貴?新家320平只用了16萬!
>>>>推薦閱讀:不管從外觀和裝修都堪稱經典的二層中式別墅,至少值1000萬!
>>>>推薦閱讀:7款框架結構的二層別墅設計,空間靈活造型美關鍵還抗震!











