7款框架結構的二層別墅設計,空間靈活造型美關鍵還抗震!
隨著大家安全意識的提高,框架結構的建房結構被更多的人認可,建房的時候也選擇了框架結構的設計也就自然而然了。因為框架結構具備空間靈活自重輕的特點,只要設計處理的好,就能起到較好的抗震效果,這點相信大家都會覺得很重要吧!畢竟安全健康最重要了。下面小編就為大家介紹7款框架結構的二層別墅設計,相信總有一款你會喜歡的。
漂亮二層獨棟小別墅


戶型基本信息
編號: DC0311
結構形式: 框架結構
開間: 14.1米 進深: 12.9米
占地面積: 151.39平方米
建筑面積: 357.24平方米
主體造價: 30-36萬
首層戶型:

圖紙預覽:


一 層:走廊、堂屋、客廳、臥室、廚房、餐廳、儲藏室、衛生間
二 層:客廳(附陽臺)、娛樂室、臥室(附衛生間)、臥室、書房、衛生間
二層框架結構抗震小別墅


戶型基本信息
編號: DC0295
結構形式: 框架結構
開間: 13.7米 進深: 10.2米
占地面積: 131.03平方米
建筑面積: 291.61平方米
主體造價: 25-30萬
首層戶型:

圖紙預覽:


一 層:玄關、客廳、臥室、棋牌室、廚房、餐廳、衛生間
二 層:客廳、休息區(附陽臺)、臥室(附書房)、2臥室、衛生間
漂亮二層帶閣樓別墅

戶型基本信息
編號: DC0304
結構形式: 框架結構
開間: 16.3米 進深: 15.3米
占地面積: 229.61平方米
建筑面積: 565.33平方米
主體造價: 50萬以上
首層戶型:

圖紙預覽:


一 層:門廳、客廳(中空)、3臥室、棋牌室、廚房、餐廳、室內景觀、儲存間、衛生間、車庫
二 層:起居室、客廳、臥室(附書房,衣帽間,衛生間)、臥室(附露臺)、2臥室、衛生間
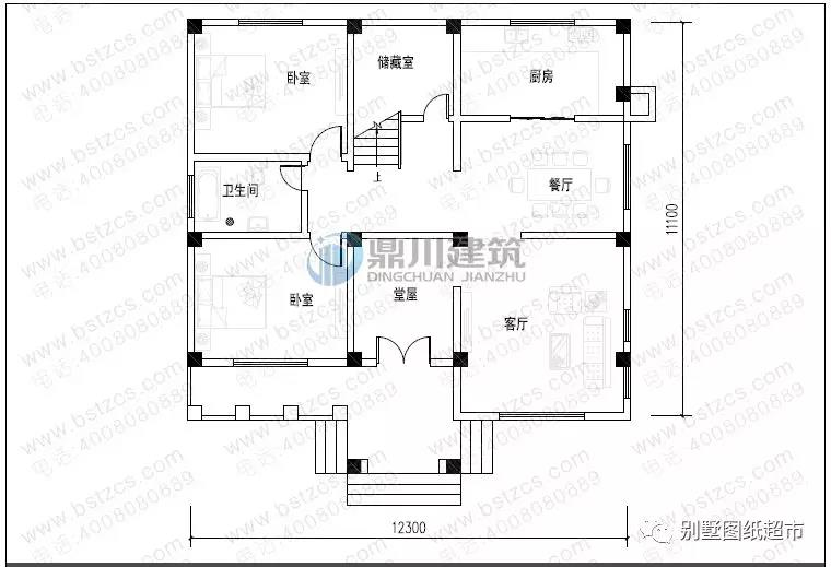
二層帶露臺農村別墅

戶型基本信息
編號: DC0287
結構形式: 框架結構
開間: 12.3米 進深: 11.1米
占地面積: 130平方米
建筑面積: 295.19平方米
主體造價: 25-30萬
首層戶型:

圖紙預覽:


一 層:走廊、堂屋、客廳、2臥室、廚房、餐廳、衛生間、儲藏室
二 層:客廳(附露臺)、臥室(附書房,露臺)、臥室(附露臺)、臥室、衛生間
框架結構二層帶車庫別墅

戶型基本信息
編號: DC0265
結構形式: 框架結構
開間: 14.7米 進深: 10.8米
占地面積: 148.78平方米
建筑面積: 354.63平方米
主體造價: 30-35萬
首層戶型:

圖紙預覽:


一 層:客廳、臥室、棋牌室、廚房、餐廳、衛生間、儲藏室、車庫
二 層:休息區、客廳(附陽臺)、臥室(附書房,衛生間)、臥室(附衣帽間)、2臥室、衛生間
二層豪華私人別墅

戶型基本信息
編號: DC0192
結構形式: 框架結構
開間: 16.94米 進深: 12.04米
占地面積: 168.28平方米
建筑面積: 331.33平方米
主體造價: 30-36萬
首層戶型:

圖紙預覽:


一 層:門廳、客廳、2臥室、廚房、餐廳、衛生間、車庫
二 層:起居室、臥室(附書房,衣帽間,衛生間,露臺)、臥室、衛生間、陽臺、露臺
二層帶車庫框架結構別墅


戶型基本信息
編號: DC0254
結構形式: 框架結構
開間: 13.4米 進深: 9.2米
占地面積: 109.24平方米
建筑面積: 213.56平方米
主體造價: 26-32萬
首層戶型:

圖紙預覽:


一 層:客廳、臥室、廚房(兼餐廳)、衛生間、車庫
二 層:客廳(附陽臺)、臥室(附陽臺)、2臥室、衛生間
.jpg)
本文由別墅圖紙超市編輯發布,如需了解更多,可登錄網站主頁http://www.qingshandinghua.com/,或者撥打我們的免費電話400-8080-889在線咨詢。
>>>>推薦閱讀:6套精美小別墅,有錢人農村建別墅的首選!
>>>>推薦閱讀:11套最新設計農村自建別墅定制款,專為新農村設計!
>>>>推薦閱讀:賣的最火,建的最多的8款自建別墅,大家說好才是真的好!











