多款面寬11米的農村別墅,易建造又美觀,看看哪個最適合!
農村別墅多以實用為要求,然后戶型要簡單方正,那樣更利于農村生活的便利性。然而受宅基地的大小限制,如今的小宅基在農村更為普遍,面寬11米左右的戶型就更為常見了。你想啊,誰都想把自己的房子建的漂漂亮亮,大大方方的是吧,但是實在是受了開間和面寬的限制怎么辦?下面就為大家介紹多款面寬11米的別墅戶型,有兩層的也有三層的,而且款款造型簡單美觀,易于建造,農村的施工隊都能建造,看看哪一套更適合你吧!
漂亮三層復式歐式別墅

編號: DC0305
開間: 10.946米 進深: 15.9米
占地面積: 155.35平方米
建筑面積: 480.95平方米
主體造價: 45-50萬
首層戶型:

圖紙預覽:


一 層:門廳、客廳(中空)、臥室(附衛生間)、臥室、棋牌室、廚房、餐廳、衛生間
二 層:主臥(附書房,衣帽間,衛生間,2陽臺,露臺)、2臥室、儲存間、衛生間
三 層:健身房(附露臺)、臥室(附衛生間,露臺)、2臥室、書房、衛生間、露臺、涼亭
新農村三層別墅

編號: DC0294
開間: 11.1米 進深: 9.6米
占地面積: 109.06平方米
建筑面積: 294.8平方米
主體造價: 26-30萬
首層戶型:

圖紙預覽:


一 層:玄關、客廳(中空)、臥室、廚房、餐廳、衛生間
二 層:2臥室、書房(附陽臺)、娛樂室、衛生間
三 層:客廳、2臥室、書房、衛生間、露臺
農村二層坡屋頂小別墅


編號: DC0283
開間: 11米 進深: 9.6米
占地面積: 112.72平方米
建筑面積: 257.77平方米
主體造價: 20-25萬
首層戶型:

圖紙預覽:


一 層:堂屋、客廳、2臥室、廚房、餐廳、衛生間
二 層:客廳(附陽臺)、臥室(附書房)、3臥室、衛生間
獨棟三層帶車庫別墅

編號: DC0277
開間: 11米 進深: 11.6米
占地面積: 130.71平方米
建筑面積: 385.85平方米
主體造價: 28-32萬
首層戶型:

圖紙預覽:


一 層:客廳、臥室、廚房、餐廳、衛生間、車庫
二 層:客廳、娛樂廳、臥室(附陽臺)、2臥室、書房、衛生間
三 層:娛樂廳、臥室(附陽臺)、2臥室、衛生間、露臺
二層復式帶露臺別墅

編號: DC0250
開間: 11.34米 進深: 13.31米
占地面積: 136.40平方米
建筑面積: 254.44平方米
主體造價: 20-25萬
首層建筑:

圖紙預覽:


一 層:客廳、臥室(附衛生間)、臥室、儲藏室、廚房、餐廳、衛生間
二 層:休息區(附陽臺)、臥室(附衛生間)、2臥室、書房、衛生間
頂 層:露臺
漂亮實用三層簡歐小別墅

編號: DC0243
開間: 11米 進深: 11.3米
占地面積: 120.85平方米
建筑面積: 307.63平方米
主體造價: 25-32萬
首層戶型:

圖紙預覽:


一 層:客廳、臥室、廚房、餐廳、衛生間、車庫或儲藏室
二 層:客廳、臥室(附衛生間)、2臥室、書房(附陽臺)、衛生間、陽臺
三 層:2臥室(附衛生間)、露臺
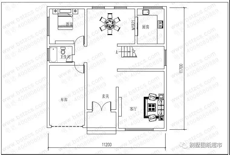
帶露臺及車庫二層小別墅

編號: DC0230
開間: 11.1米 進深: 11.4米
占地面積: 123.09平方米
建筑面積: 207.43平方米
主體造價: 22-27萬
首層戶型:

圖紙預覽:


一 層:玄關、客廳、臥室、廚房、餐廳、儲藏室、衛生間、車庫
二 層:臥室(附衛生間)、臥室(附衣帽間)、臥室、衛生間、露臺
三層帶車庫露臺復式客廳別墅


編號: DC0225
開間: 11.2米 進深: 11.7米
占地面積: 125.7平方米
建筑面積: 305.12平方米
主體造價: 20-25萬
首層戶型:

圖紙預覽:


一 層:客廳(中空)、臥室、廚房、餐廳、衛生間、車庫
二 層:客廳、臥室(附陽臺)、2臥室、書房、衛生間
三 層:臥室(附書房)、2臥室、衛生間、露臺
新農村二層別墅


編號: DC0181
開間: 11.2米 進深: 13.6米
占地面積: 143.99平方米
建筑面積: 283.66平方米
主體造價: 24-30萬
首層戶型:

圖紙預覽:


一 層:玄關、客廳、臥室、廚房、餐廳、衛生間
二 層:客廳(附陽臺)、2臥室(附陽臺)、2臥室、衣帽間、衛生間
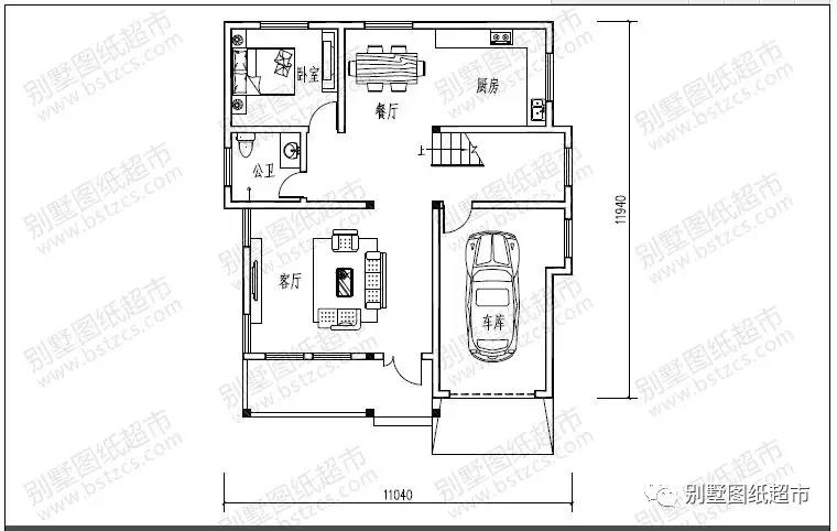
三層帶車庫新農村別墅


編號: DC0157
開間: 11.04米 進深: 11.94米
占地面積: 116.7平方米
建筑面積: 325.01平方米
主體造價: 22-26萬
首層戶型:

圖紙預覽:


一 層:走廊、客廳、臥室、廚房、餐廳、衛生間、車庫
二 層:客廳(附陽臺)、主臥(附衣帽間,衛生間)、2臥室、衛生間
三 層:客廳(附陽臺)、2臥室、衛生間、露臺
二層農村自建別墅

編號: DC0134
開間: 11.1米 進深: 12米
占地面積: 123.05平方米
建筑面積: 246.1平方米
主體造價: 18-24萬
首層戶型:

圖紙預覽:


一 層:客廳、臥室、棋牌室(或臥室)、廚房、餐廳、雜物間、衛生間
二 層:小客廳、臥室(附衛生間)、2臥室、書房(或臥室)、衛生間、陽臺
.jpg)
本文由別墅圖紙超市編輯發布,如需了解更多,可登錄網站主頁http://www.qingshandinghua.com/,或者撥打我們的免費電話400-8080-889在線咨詢。
>>>>推薦閱讀:10款造價22萬新農村自建別墅,選中即可開工!
>>>>推薦閱讀:9套進深11米左右的自建別墅設計,小宅基地的大選擇!
>>>>推薦閱讀:6款非常適合農村自建房的三層復式別墅設計











