10款造價22萬新農村自建別墅,選中即可開工!
今天小編給大家帶來10款造價22萬新農村自建別墅,每款占地百余平,戶型造型別致,風格不同,基本可以滿足不同人群的需要。同時這十款別墅又非常有設計感,布局合理樣式美觀,造價不高,施工方便,每一棟都是精心設計的藝術品,讓人為之動心。無論挑哪一棟蓋起來,都是村里最美的,趕緊收藏了回家去蓋吧,隨便選中一套即可以開工啦!
二層帶露臺小戶型別墅

編號: DC0366
開間: 8米 進深: 12.3米
占地面積: 100.91平方米
建筑面積: 211.08平方米
主體造價: 18-22萬
一 層:客廳、臥室(附衛生間)、廚房、餐廳、衛生間
二 層:客廳(附露臺)、臥室(附衛生間)、臥室、衛生間
首層戶型:

二層戶型:

二層帶棋牌室別墅

編號: DC0009
開間: 10.2米 進深: 9.7米
占地面積: 96.6平方米
建筑面積: 193.2平方米
主體造價: 18-22萬
一 層:玄關、客廳、臥室、棋牌室、廚房、餐廳、衛生間
二 層:小客廳、臥室(附陽臺)、3臥室、衛生間
首層戶型:

圖紙預覽:


一層帶閣樓農村自建別墅

編號: DC0350
開間: 17.4米 進深: 12米
占地面積: 186.56平方米
建筑面積: 235.58平方米
主體造價: 18-22萬
一 層:門廳、客廳、臥室(附衛生間)、2臥室、廚房、餐廳、衛生間
二 層:2客房、儲存間、雜物間
一層戶型:

閣樓戶型:

鄉村二層別墅

編號: DC0012
開間: 12.6米 進深: 10.1米
占地面積: 111.35平方米
建筑面積: 253.1平方米
主體造價: 18-22萬
一 層:堂屋、客廳、臥室、廚房、餐廳、衛生間
二 層:客廳(附陽臺)、棋牌室、臥室(附陽臺)、2臥室、衛生間
首層戶型:

圖紙預覽:



新農村三層別墅

編號: DC0021
開間: 8米 進深: 10.1米
占地面積: 78.6平方米
建筑面積: 202.92平方米
主體造價: 19-22萬
一 層:客廳、臥室、廚房兼餐廳、衛生間
二 層:起居室(附陽臺)、臥室(附衣帽間)、臥室、衛生間
三 層:臥室(附露臺)、臥室(附陽臺)、衛生間
首層戶型:

圖紙預覽:


三層小進深農村別墅

編號: DC0024
開間: 8.9米 進深: 8.4米
占地面積: 75.61平方米
建筑面積: 252.39平方米
主體造價: 18-22萬
一 層:客廳、臥室、廚房(兼餐廳)、衛生間
二 層:客廳(附陽臺)、2臥室、衛生間
三 層:臥室(附陽臺)、2臥室、衛生間
首層戶型:

圖紙預覽:


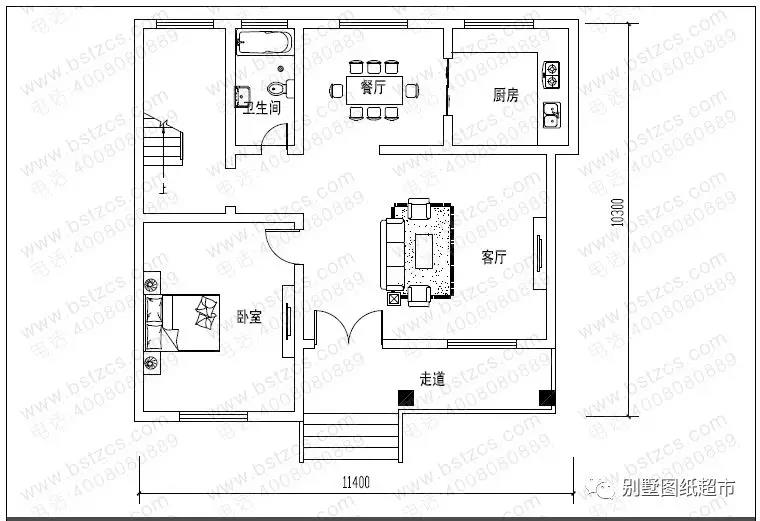
新農村二層別墅

編號: DC0027
開間: 11.4米 進深: 10.3米
占地面積: 105.95平方米
建筑面積: 210平方米
主體造價: 18-22萬
一 層:走廊、客廳、臥室、廚房、餐廳、衛生間
二 層:客廳(附陽臺)、臥室(附陽臺)、臥室(附書房)、臥室、衛生間
首層戶型:

圖紙預覽:


二層農村自建別墅


編號: DC0031
開間: 13.14米 進深: 12.24米
占地面積: 134.73平方米
建筑面積: 276.34平方米
主體造價: 18-22萬
一 層:客廳、臥室(附衛生間)、臥室、棋牌室、廚房、餐廳、衛生間
二 層:起居室(附露臺)、臥室(附衛生間)、臥室(附書房)、臥室、衛生間
首層戶型:

圖紙預覽:


農村三層別墅

編號: DC0038
開間: 7米 進深: 11.1米
占地面積: 76.53平方米
建筑面積: 219.9平方米
主體造價: 18-22萬
一 層:客廳、臥室、廚房、餐廳、衛生間、儲藏室
二 層:小客廳(附陽臺)、2臥室、書房、衛生間
三 層:多功能房、2臥室、衛生間、露臺
首層戶型:

圖紙預覽:


二層新農村小別墅

編號: DC0140
開間: 11米 進深: 10.08米
占地面積: 90.2平方米
建筑面積: 196.92平方米
主體造價: 18-22萬
一 層:客廳、臥室、廚房、餐廳、衛生間
二 層:客廳(附陽臺)、活動廳、3臥室、衛生間
首層戶型:

圖紙預覽:


.jpg)
本文由別墅圖紙超市編輯發布,如需了解更多,可登錄網站主頁http://www.qingshandinghua.com/,或者撥打我們的免費電話400-8080-889在線咨詢。
>>>>推薦閱讀:6款非常適合農村自建房的三層復式別墅設計
>>>>推薦閱讀:9套進深11米左右的自建別墅設計,小宅基地的大選擇!
>>>>推薦閱讀:精選6款二層半自建別墅,二三十萬實現鄉村別墅夢











