開間14米的大氣別墅,農村自建房就選10款圖紙
建新房雖然是一項耗財耗力的大工程,但當房屋建好裝修好入住以后,心里也會覺得很欣慰,不過如果我們選錯設計方案,挑選的設計圖不適合自家住房需求,即使房屋建好了,也會住得不舒服。挑選方案是建房的重中之重,務必要慎重,下面給大家分享10套開間約14米農村自建別墅設計圖紙,供大家挑選對比。
實用經濟型一層小別墅
.jpg)
編號: DC0371
結構形式: 磚混結構
主體造價: 18-22萬
開間: 14米 進深: 11米
占地面積: 158.6平方米
建筑面積: 188.6平方米
首層戶型:
.jpg)
一 層:門廳、客廳、臥室(附衛生間)、3臥室、廚房、餐廳、衛生間
三層帶車庫復式別墅
.jpg)
建成案例:
.jpg)
編號: DC0001
結構形式: 框架結構
主體造價: 34-40萬
開間: 13.3米 進深: 14.6米
占地面積: 147.7平方米
建筑面積: 366.4平方米
首層戶型:
.jpg)
一 層:入口玄關、客廳、餐廳、廚房、客房、衛生間、車庫
二 層:臥室、臥室(附陽臺)、臥室(附書房,衛生間,陽臺)、衛生間
三 層:活動廳(附露臺)、臥室、臥室(附露臺)、臥室(附書房,衛生間,陽臺)、衛生間
二層帶車庫露臺別墅
.jpg)
建成案例:
.jpg)
編號: DC0159
結構形式: 磚混結構
主體造價: 24-28萬
開間: 14.34米 進深: 11.34米
占地面積: 157.59平方米
建筑面積: 290.71平方米
首層戶型:
.jpg)
一 層:門廳、客廳、2臥室、廚房、餐廳、衛生間、車庫
二 層:主臥室(附衛生間,陽臺)、臥室(附陽臺)、臥室(附書房)、臥室、棋牌室、衛生間
三層帶大露臺農村別墅
.jpg)
建成案例:
.jpg)
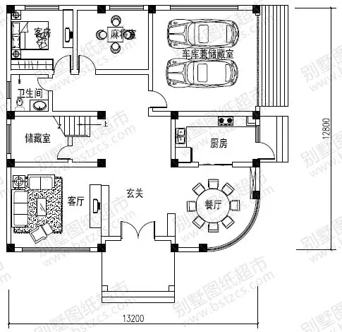
編號: DC0111
結構形式: 框架結構
主體造價: 38-42萬
開間: 13.2米 進深: 12.8米
占地面積: 170.38平方米
建筑面積: 412.72平方米
首層戶型:
.jpg)
一 層:客廳、麻將室、客房、廚房、餐廳、衛生間、儲藏室、車庫
二 層:起居室(附陽臺)、2臥室(衛生間)、臥室、娛樂室(附陽臺)、衛生間
三 層:家庭室、儲藏室、臥室(附衛生間)、露臺
一層帶閣樓別墅設計
.jpg)
建成案例:
.jpg)
編號: DC0189
結構形式: 磚混結構
主體造價: 16-20萬
開間: 14.04米 進深: 11.34米
占地面積: 144.36平方米
建筑面積: 210.69平方米
首層戶型:
.jpg)
一 層:客廳、臥室(附衛生間)、2臥室、廚房、餐廳、衛生間
閣 樓:臥室、雜物間
大氣歐式三層別墅
.jpg)
建成案例:
.jpg)
編號: DC0179
結構形式: 框架結構
主體造價: 36-42萬
開間: 14.34米 進深: 14.045米
占地面積: 154.33平方米
建筑面積: 332.28平方米
首層戶型:
.jpg)
一 層:客廳(中空)、臥室(附衛生間)、臥室、棋牌室、廚房、餐廳、衛生間
二 層:起居室、臥室(附衣帽間,衛生間)、2臥室、衛生間
三 層:家庭影院(附露臺)、臥室、洗衣房、露臺
二層帶閣樓的別墅設計
.jpg)
.jpg)
建成案例:
.jpg)
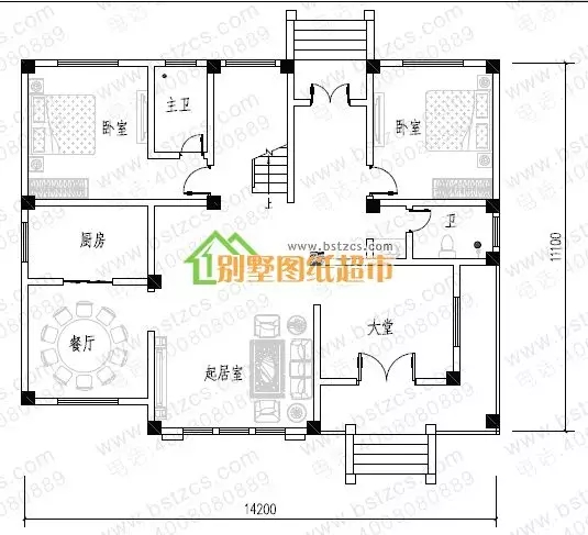
編號: DC0260
結構形式: 框架結構
主體造價: 34-40萬
開間: 14.2米 進深: 11.1米
占地面積: 144.24平方米
建筑面積: 344.08平方米
首層戶型:
.jpg)
一 層:大堂、客廳、臥室(附衛生間)、臥室、廚房、餐廳、衛生間
二 層:起居室、臥室(附露臺)、臥室(附陽臺)、臥室、衛生間、陽臺
閣 樓:儲藏間、衛生間、露臺
新農村二層別墅設計
.jpg)
編號: DC0359
結構形式: 磚混結構
主體造價: 30-35萬
開間: 14.4米 進深: 12.6米
占地面積: 180.6平方米
建筑面積: 368.8平方米
首層戶型:
.jpg)
二層戶型:
.jpg)
一 層:門廳、客廳、臥室(附衛生間)、2臥室、廚房、餐廳、儲物間、衛生間
二 層:起居室(附陽臺)、娛樂室(附陽臺)、臥室(附衛生間)、3臥室、書房、衛生間
農村三層帶車庫自建房
.jpg)
建成案例:
.jpg)
編號: DC0256
結構形式: 磚混結構
主體造價: 22-26萬
開間: 14米 進深: 8米
占地面積: 115.12平方米
建筑面積: 296.57平方米
首層戶型:
.jpg)
一 層:客廳、臥室、廚房、餐廳、衛生間、車庫(兼儲藏室)
二 層:客廳、休息區、臥室(附露臺)、3臥室、衛生間
三 層:3臥室、衛生間、2露臺
復式三層帶露臺別墅
.jpg)
編號: DC0353
結構形式: 框架結構
主體造價: 40-45萬
開間: 14米 進深: 13.8米
占地面積: 196.66平方米
建筑面積: 434.81平方米
首層戶型:
.jpg)
二層戶型:
.jpg)
三層戶型:
.jpg)
一 層:走廊、堂屋、客廳(中空)、會客室(附內陽臺)、臥室(附衛生間)、廚房、餐廳、衛生間
二 層:小客廳(附陽臺)、臥室(附衛生間,露臺)、臥室(附書房)、臥室、衛生間
三 層:活動室、臥室(附衛生間)、臥室(附書房)、衛生間、陽臺、露臺
到底什么樣的自建房才是受歡迎的呢?漂亮的外觀是其中一個因素,還要考慮宅基地情況,家庭成員人數,建房預算等,所以房屋的布局和規劃也是很關鍵的。廚房、餐廳、車庫、露臺、書房、多少間臥室等這些功能都要提前規劃好,不然建好以后又想改就麻煩了。
.jpg)
本文由別墅圖紙超市編輯發布,如需了解更多,可登錄網站主頁http://www.qingshandinghua.com/,或者撥打我們的免費電話400-8080-889在線咨詢。
>>>>推薦閱讀:16款定制設計款農村別墅,花大價錢設計的圖紙到底值不值?
>>>>推薦閱讀:造價22萬的9款鄉村別墅,每一棟都精心設計,經典別致!
>>>>推薦閱讀:案例:8款多臥室帶露臺小別墅,第7套更有9室,建了即賺了











