農村二層帶露臺小別墅,半獨立廚房父母很喜歡!
傳統的農村居住習慣是一定要將廚房獨立出來的,于是很多的業主在準備建新房的時候,他們的父母都非常想要有一個土灶臺,有的甚至是強烈要求要有。今天小編介紹的這款農村二層帶露臺小別墅就是帶半獨立廚房的戶型,這款別墅的建筑外觀造型錯落有致、穩重大方,整體配套自然和諧,色彩搭配溫馨,這樣的立體感和藝術感讓別墅顯得十分洋氣。
外觀效果圖

戶型基本信息
編號: DC0212
層數: 二層
結構形式: 磚混結構
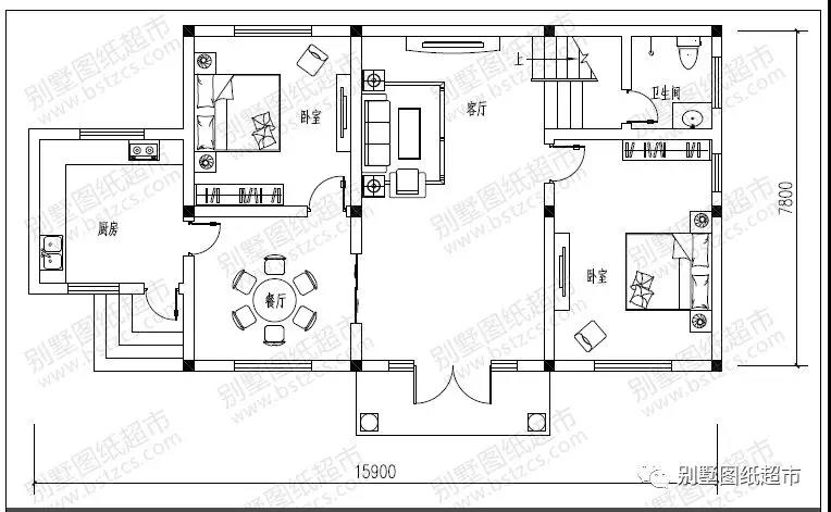
開間: 15.9米 進深: 7.8米
占地面積: 114.65平方米
建筑面積: 201.43平方米
主體造價: 16-20萬
別墅第一層設計帶有客廳、2臥室、廚房、餐廳、衛生間。戶型以安全、實用、經濟、方正為設計主旨,充分考慮農村居民的生產和生活習慣并突出地方特色,以適應新時期農民的需要。

二層設有客廳、臥室(附書房,衛生間)、臥室、衛生間、露臺。兩間臥室中有一間臥室設有獨立衛生間和書房,非常方便,露臺是房屋的必備空間,晾曬衣物和農作物簡直再合適不過了。



.jpg)
本文由別墅圖紙超市編輯發布,如需了解更多,可登錄網站主頁http://www.qingshandinghua.com/,或者撥打我們的免費電話400-8080-889在線咨詢。
>>>>推薦閱讀:造價18萬二層帶陽臺小別墅,磚混結構,占地不到100平!
>>>>推薦閱讀:5套帶車庫二層農村別墅,不超過30萬,拿回家立馬蓋
>>>>推薦閱讀:面寬12米農村建房,13款經典實用戶型,辛苦打拼要建好房子!











