22款一層自建別墅,院子閣樓加車庫,平層房好生活!
現在農村基本上都是二三層的別墅,就算家中只有老父老母,也要往高大上了建,可是蓋出來的房子根本沒多少人住,只是一個堆積塵的地方;如果真是為了養老住家考慮,那就蓋一棟實用的單層小平房最合適了,一樣的宅地大小可只要一半的造價,這樣的房子才最實用。
一層帶閣樓及車庫

戶型基本信息
編號: DC0249
結構形式: 磚混結構
開間: 13.2米 進深: 12米占
地面積: 153.38平方米
建筑面積: 187.85平方米
主體造價: 14-18萬
戶型圖:

一 層:客廳、3臥室、廚房、餐廳、衛生間、車庫
閣 樓:儲藏間
農村一層帶閣樓

戶型基本信息
編號: DC0237
結構形式: 磚混結構
開間: 16米 進深: 9.3米
占地面積: 145.38平方米
建筑面積: 267.99平方米
主體造價: 10-15萬
戶型圖:

一 層:堂屋(兼餐廳)、客廳、4臥室、廚房、衛生間
閣 樓:儲藏間
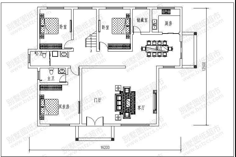
農村一層帶閣樓

戶型基本信息
編號: DC0220
結構形式: 磚混結構
開間: 16.2米 進深: 12.5米
占地面積: 183.25平方米
建筑面積: 236.72平方米
主體造價: 15-18萬
戶型圖:

一 層:客廳、臥室(附衛生間)、2臥室、廚房、餐廳、儲藏室、衛生間
夾 層:儲藏間
一層帶閣樓別墅

戶型基本信息
編號: DC0059
結構形式: 磚混結構
開間: 14.04米 進深: 11.34米
占地面積: 144.36平方米
建筑面積: 210.69平方米
主體造價: 16-20萬
戶型圖:

一 層:客廳、臥室(附衛生間)、2臥室、廚房、餐廳、衛生間
閣 樓:臥室、雜物間
實用經濟型一層別墅

戶型基本信息
編號: DC0371
結構形式: 磚混結構
開間: 14米 進深: 11米
占地面積: 158.6平方米
建筑面積: 188.6平方米
主體造價: 18-22萬
戶型圖:

一 層:門廳、客廳、臥室(附衛生間)、3臥室、廚房、餐廳、衛生間
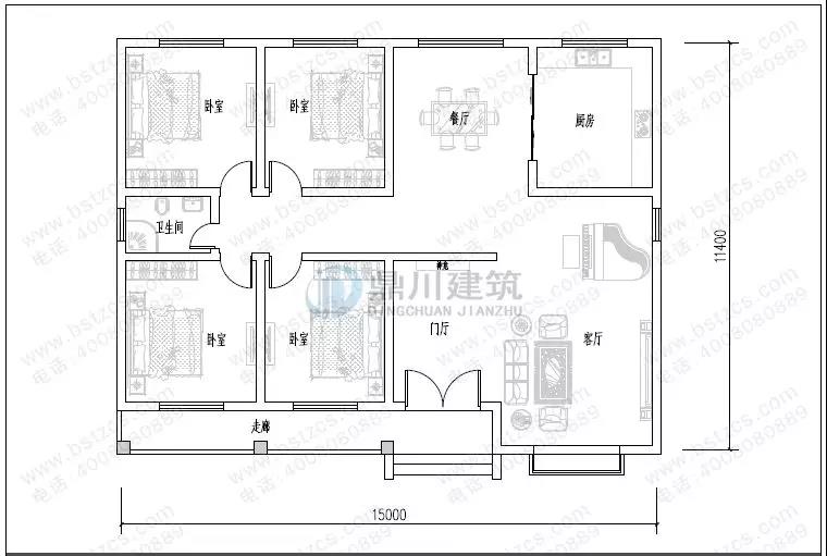
漂亮實用一層別墅

戶型基本信息
編號: DC0369
結構形式: 磚混結構
開間: 15米 進深: 11.4米
占地面積: 177.39平方米
建筑面積: 217.03平方米
主體造價: 16-20萬
戶型圖:

一 層:走廊、門廳、客廳、4臥室、廚房、餐廳、衛生間
一層帶閣樓農村自建別墅

戶型基本信息
編號: DC0350
結構形式: 磚混結構
開間: 17.4米 進深: 12米
占地面積: 186.56平方米
建筑面積: 235.58平方米
主體造價: 18-22萬
首層戶型:

閣樓戶型:

一 層:門廳、客廳、臥室(附衛生間)、2臥室、廚房、餐廳、衛生間
二 層:2客房、儲存間、雜物間
一層帶車庫農村別墅

戶型基本信息
編號: DC0302
結構形式: 磚混結構
開間: 19.8米 進深: 13.8米
占地面積: 243.56平方米
建筑面積: 346.94平方米
主體造價: 25-30萬
戶型圖:

一 層:走廊、門廳、客廳、臥室(附衣帽間)、臥室(附衛生間)、2臥室、活動室、儲藏間、廚房、餐廳、衛生間、車庫
一層帶閣樓農村別墅

戶型基本信息
編號: DC0264
結構形式: 磚混結構
開間: 13.8米 進深: 12米
占地面積: 138.15平方米
建筑面積: 202.41平方米
主體造價: 15-20萬
戶型圖:

一 層:走廊、客廳、3臥室、廚房、餐廳、2衛生間
閣 樓:儲藏間
一層農村房屋

戶型基本信息
編號: DC0122
結構形式: 磚混結構
開間: 11.1米 進深: 9米
占地面積: 91.94平方米
建筑面積: 104.13平方米
主體造價: 10-13萬
戶型圖:

一 層:客廳、3臥室、廚房、餐廳、衛生間
農村一層平房

戶型基本信息
編號: DC0158
結構形式: 磚混結構
開間: 15.5米 進深: 9米
占地面積: 133.2平方米
建筑面積: 178.14平方米
主體造價: 9-12萬
戶型圖:

一 層:客廳、臥室(附衛生間)、3臥室、廚房(附儲藏室)、衛生間
一層帶內院別墅


一層典雅型別墅

帶閣樓經典一層

帶閣樓院子一層


大開間一層帶閣樓

一層農村小別墅

一層帶閣樓小別墅


一層帶院子小別墅

一層半農村小別墅

一層中式農村別墅

一層帶閣樓小別墅

平層別墅的實用性,一點都不亞于二三層小洋樓設計,畢竟蓋出來的房子是為了滿足自己的居住生活,怎么做怎么施工心里都清楚,相比那些動輒要三四十萬才能蓋出來的房子,平層房只需要十來萬就可以,20萬封頂最高了,說來說去,還是平層建筑的實用性最強!
.jpg)
本文由別墅圖紙超市編輯發布,如需了解更多,可登錄網站主頁http://www.qingshandinghua.com/,或者撥打我們的免費電話400-8080-889在線咨詢。
>>>>推薦閱讀:23款私人定制風格別墅案例,讓你明白為什么定制設計那么流行!
>>>>推薦閱讀:30余款最新設計:造型大方又體面,都是適合老百姓建的好房子!
>>>>推薦閱讀:7套農村新中式四合院,一套比一套美,有庭有院過美好生活!











