建房自述:60萬實現自建房夢,看網友如何引爆當地建房潮!
今天我們又為大家帶來一個朋友建房過程的自述。主人公建的是一套農村二層別墅,主體加裝修總造價在60萬,建成的效果可以說令人相當滿意,村里的鄉鄰看到這棟房子,都勾起了蠢蠢欲動建房的心。

接下來是主人公的自述,讓我們看看是如何引爆建房潮的吧!建房小白一個,家里有塊宅基地,一直想建一套自己夢想中的房子,在網上查找了各種戶型,也看了很多大俠們建的案例,于2012年開始籌備建造屬于自己的夢想小居。
自己畫的粗糙的效果圖


開工了

基礎長X寬1.5MX1.5M,深1.2米

地梁的施工,地基梁為深55CM和24CM

一層開始施工

一層裝?,F澆

二層砌磚

主體基本完工

屋面蓋瓦

屋檐外飄45CM,然后砌的天溝,天溝尺寸21CM。因為不是現澆的,所以加了 一層防水。

外墻施工中

拆架子了

室內裝修都是請人自己弄的


房子是前兩年建的,歷時兩年多,主體花了20萬,裝修40來萬,一共的費用在60萬以內。放在現在的話估計得翻倍吧。誰說農村建房不是投資?建的早,省了錢也是一種投資吧。
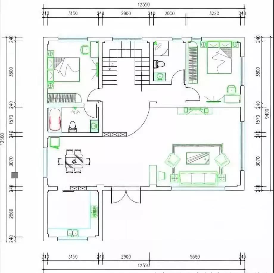
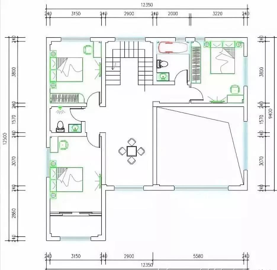
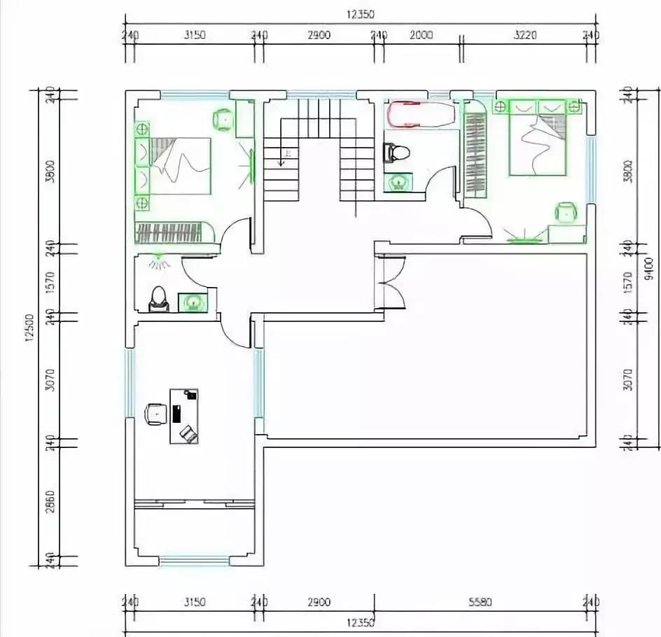
最后放下平面圖



房子建好后,在當地挺受歡迎的,來參觀戶型,施工咨詢的很多,正好當地的建房子有補貼,所以很多人家都在建房子,一個施工隊接幾十個工程,同時幾個工地開工,每天催施工隊都要用搶的。
.jpg)
本文由別墅圖紙超市編輯發布,如需了解更多,可登錄網站主頁http://www.qingshandinghua.com/,或者撥打我們的免費電話400-8080-889在線咨詢。
>>>>推薦閱讀:建房自述:回鄉自建兩層小別墅,實用經濟還能孝敬父母!
>>>>推薦閱讀:建房自述:網友20萬在農村自建三層樓房過程,小住養老很不錯!
>>>>推薦閱讀:建房自述:全程參與設計監工的別墅,自己滿意建成就是豪宅!











