別不信,30萬就能在農村建個三層的簡歐別墅,造型布局沒得挑!
30萬能干什么?30萬能在農村建個小別墅了。別不信,下面就為大家介紹幾款三層的農村別墅,造價都在30萬左右。一起來看看吧!
編號: DC0365
層數: 三層
結構形式: 磚混結構
主體造價: 24-28萬
開間: 12.3米
進深: 9米
占地面積: 115.87平方米
建筑面積: 300.19平
簡歐的三層別墅,帶大露臺和落地窗,標準別墅配置;結構也比較簡單,施工難度小,適合農村建造。
平面戶型圖
一 層: 走廊、門廳、客廳、臥室、廚房、餐廳、衛生間
二 層: 起居室、娛樂室、臥室(附露臺)、2臥室、衛生間
三 層: 健身房、臥室、衛生間、露臺
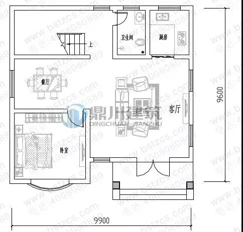
編號: DC0312
層數: 三層
結構形式: 磚混結構
主體造價: 22-26萬
開間: 9.9米
進深: 9.6米
占地面積: 92.94平方米
建筑面積: 274.1平方米
三層帶落地窗的農村小別墅,雖然占地面積小,不足百來平,但是不管是從外觀還是布局來看,都更顯大氣,此款農村別墅比較適合宅基小的家庭建。
平面戶型圖
一 層: 客廳、臥室、廚房、餐廳、衛生間
二 層: 休息區、臥室(附書房,衣帽間,陽臺)、臥室、儲存間、衛生間
三 層: 臥室(附書房,衣帽間,陽臺)、臥室(附露臺)、衛生間
編號: DC0262
層數: 三層
結構形式: 磚混結構
主體造價: 23-28萬
開間: 11.5米
進深: 13.5米
占地面積: 131.72平方米
建筑面積: 357.31平方米
此款農村別墅,結構造型都比較簡單,大氣的門斗,還有超大的露臺,都讓此款小別墅很凸出,最主要的是,不管從造價還是從外觀來看,都是一款性價比較高的農村自建別墅。
平面戶型圖
一 層: 客廳、臥室(附衛生間)、臥室、廚房、餐廳、衛生間
二 層: 客廳、臥室(附衛生間,陽臺)、臥室、書房、娛樂廳(附露臺)、衛生間
三 層: 活動廳、2臥室、衛生間、露臺
編號: DC0256
層數: 三層
結構形式: 磚混結構
主體造價: 22-26萬
開間: 14米
進深: 8米
占地面積: 115.12平方米
建筑面積: 296.57平方米
這是一款很受大眾歡迎的自建別墅,帶車庫,陽臺落地窗。從外墻裝飾來看,磚紅色的墻體喜慶又經典,和白色的羅馬柱、窗套形成鮮明的對比,更凸顯顏色的明艷。造型也簡單大氣。
平面戶型圖
一 層: 客廳、臥室、廚房、餐廳、衛生間、車庫(兼儲藏室)
二 層: 客廳、休息區、臥室(附露臺)、3臥室、衛生間
三 層: 3臥室、衛生間、2露臺
以上幾款自建房,造價都不足30萬,布局規整,造型經典,30萬能在農村建個這樣大氣的小別墅,相信都樂不思蜀了。如果喜歡的朋友可以聯系我們咨詢圖紙哦~
.jpg)
本文由別墅圖紙超市編輯發布,如需了解更多,可登錄網站主頁http://www.qingshandinghua.com/,或者撥打我們的免費電話400-8080-889在線咨詢。
>>>>推薦閱讀:三層框架別墅設計圖紙的建房實拍,28萬建成讓老父親驕傲無比!
>>>>推薦閱讀:【案例】時尚感爆棚的復式三層農村別墅,還帶人人超愛的大院子!
>>>>推薦閱讀:【自建房案例】網友30萬蓋三層自建房,建成效果讓鄰居紛紛仿建!











