農村建房還是二層最實用!經典二層自建別墅,12款戶型任選!
新農村自建房到底怎么建好?2層還是3層?磚混結構還是框架結構?車庫要不要?露臺要不要?每天都有很多業主朋友在咨詢小編。考慮到建房成本,使用習慣等,2層帶露臺入戶車庫的戶型是最受大家喜歡的,今天小編給大家分享12款經典二層自建別墅,想建房的朋友都可以看看。
新農村二層別墅設計
編號: DC0359
結構形式: 磚混結構
開間: 14.4米 進深: 12.6米
占地面積: 180.6平方米
建筑面積: 368.8平方米
主體造價: 30-35萬
首層戶型:
二層戶型:
一 層:門廳、客廳、臥室(附衛生間)、2臥室、廚房、餐廳、儲物間、衛生間
二 層:起居室(附陽臺)、娛樂室(附陽臺)、臥室(附衛生間)、3臥室、書房、衛生間
二層簡歐風格別墅
編號: DC0306
結構形式: 磚混結構
開間: 15米 進深: 9米
占地面積: 125.16平方米
建筑面積: 269.98平方米
主體造價: 20-25萬
首層戶型:
圖紙預覽:
一 層:客廳、臥室(附書房)、棋牌室、廚房、餐廳、儲存間、衛生間
二 層:起居室(附陽臺)、臥室(附書房,衛生間,陽臺)、臥室(附露臺)、臥室、衛生間
二層帶車庫別墅設計
編號: DC0296
結構形式: 磚混結構
開間: 14.7米 進深: 10.8米
占地面積: 149.03平方米
建筑面積: 333.32平方米
主體造價: 26-30萬
首層戶型:
圖紙預覽:
一 層:玄關、客廳、臥室、娛樂室、廚房(附儲藏室)、餐廳、衛生間、車庫
二 層:起居室、臥室(附陽臺)、3臥室、書房、衛生間、露臺
二層帶露臺復式別墅設計
編號: DC0293
結構形式: 磚混結構
開間: 15.9米 進深: 10.8米
占地面積: 151.83平方米
建筑面積: 292.61平方米
主體造價: 26-30萬
首層戶型:
圖紙預覽:
一 層:門廳、客廳(中空)、2臥室、廚房、餐廳、衛生間、車庫
二 層:客廳、臥室(附露臺)、臥室(附書房)、臥室、衛生間、露臺
帶大車庫的二層別墅設計
編號: DC0279
結構形式: 框架結構
開間: 17.7米 進深: 13.1米
占地面積: 197.69平方米
建筑面積: 490.52平方米
主體造價: 40-50萬
首層戶型:
圖紙預覽:
一 層:客廳、臥室、棋牌室、廚房、餐廳、洗衣間、衛生間、車庫
二 層:客廳、臥室(附衣帽間,陽臺)、臥室(附書房,陽臺)、3臥室、衛生間
二層帶閣樓歐式別墅
編號: DC0274
結構形式: 框架結構
開間: 13米 進深: 10米
占地面積: 134.64平方米
建筑面積: 389.68平方米
主體造價: 32-40萬
首層戶型:
圖紙預覽:
一 層:堂屋、客廳、臥室(附衛生間)、臥室、廚房、餐廳、儲藏室、衛生間
二 層:客廳(附陽臺)、臥室(附衛生間)、3臥室、衛生間
閣 樓:儲藏室、露臺
新農村實用二層小別墅設計
編號: DC0273
結構形式: 磚混結構
開間: 10.5米 進深: 8米
占地面積: 88.5平方米
建筑面積: 204.82平方米
主體造價: 16-20萬
首層戶型:
圖紙預覽:
一 層:客廳、臥室、廚房、餐廳、儲藏室、衛生間
二 層:3臥室、書房(附陽臺)、衛生間
二層帶車庫豪華歐式別墅設計
編號: DC0257
結構形式: 框架結構
開間: 14.4米 進深: 11.6米
占地面積: 164.05平方米
建筑面積: 311.04平方米
主體造價: 32-38萬
首層戶型:
圖紙預覽:
一 層:堂屋、客廳、臥室、廚房、餐廳、儲藏室、衛生間、車庫
二 層:客廳(附陽臺)、2臥室(附陽臺)、2臥室、2衛生間
閣 樓:儲藏間、露臺
二層帶閣樓大面積別墅設計
編號: DC0223
結構形式: 磚混結構
開間: 20.7米 進深: 10.8米
占地面積: 205.98平方米
建筑面積: 430.25平方米
主體造價: 30-36萬
首層戶型:
圖紙預覽:
一 層:客廳、主臥(附衛生間,書房附陽臺)、2臥室、棋牌室、儲藏室、健身房、廚房、餐廳、衛生間
二 層:活動室、主臥(附衣帽間,衛生間,陽臺)、臥室(附陽臺)、4臥室、兒童房、儲藏室、衛生間
閣 樓:陽臺
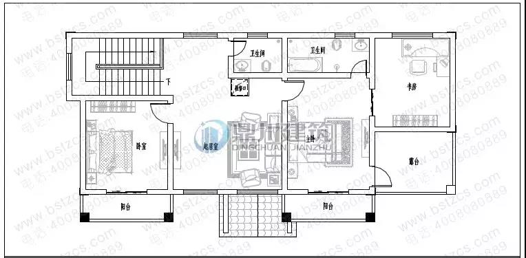
二層別墅設計
編號: DC0197
結構形式: 磚混結構
開間: 11.4米 進深: 12.9米
占地面積: 129.76平方米
建筑面積: 257.25平方米
主體造價: 26-32萬
首層戶型:
圖紙預覽:
夾 層:車庫
一 層:走廊、客廳(中空)、2臥室、廚房、餐廳、2衛生間
二 層:臥室(附衛生間,陽臺)、2臥室、衛生間
新農村二層小別墅設計
編號: DC0015
結構形式: 磚混結構
開間: 13.6米 進深: 12.3米
占地面積: 133.83平方米
建筑面積: 262.12平方米
主體造價: 24-30萬
首層戶型:
圖紙預覽:
一 層:堂屋、客廳(附走廊)、2臥室、廚房、餐廳、衛生間
二 層:客廳、2臥室(附陽臺)、3臥室、衛生間
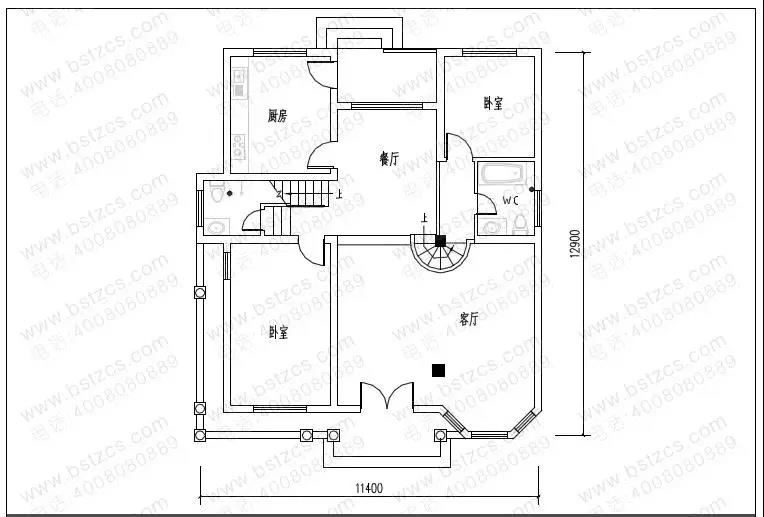
新農村二層自建房設計
編號: DC0342
結構形式: 磚混結構
開間: 17.1米 進深: 7米
占地面積: 123.02平方米
建筑面積: 260.93平方米
主體造價: 20-25萬
首層戶型:
二層圖紙:
一 層:客廳、2臥室、廚房、餐廳、衛生間、儲存間
二 層:起居室、臥室(附書房,衛生間,陽臺,露臺)、臥室(附陽臺)、衛生間
現在農村家家戶戶都是蓋三四層洋樓,或者蓋豪華歐式別墅。雖然看起來更加大氣,但實際使用起來,平時上面的房都是空著,不方便打掃衛生也很浪費,關鍵是建造成本高。所以二層自建別墅才是合適咱們農村老百姓的!
.jpg)
本文由別墅圖紙超市編輯發布,如需了解更多,可登錄網站主頁http://www.qingshandinghua.com/,或者撥打我們的免費電話400-8080-889在線咨詢。
>>>>推薦閱讀:6款最火農村小別墅,原來他們都有這個特點(內含彩色平面圖)
>>>>推薦閱讀:面寬不足10米的14款農村小別墅,窄面寬難不倒好設計!
>>>>推薦閱讀:這15套農村小別墅,堪稱農村建房典范,造價便宜布局還超實用!











