小成本就能蓋大別墅,你還在猶豫什么呢?
雖然說,大城市的省會非常的繁華讓人感覺做什么都很方便,但是怎么也比不了鄉下的風土人情,畢竟咱們中國人都有落葉歸根的傳統,人老了,就只會想要回到那個曾經生我、養我、伴我長大的地方。這不,在省城奮斗多年的趙先生,就決定在自己老家建一套農村別墅,既讓父母安享晚年,也讓自己偶爾能享受農村風格的奢華。
.jpg)
▼老宅原貌:
.jpg)
建筑設計布局圖:
.jpg)
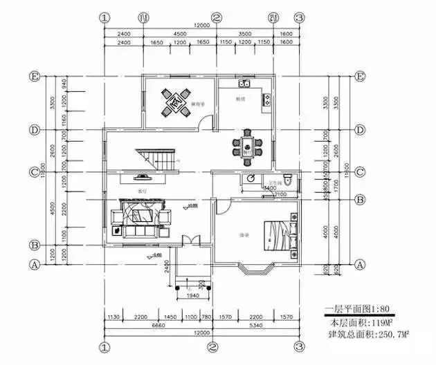
首層平面布局圖
.jpg)
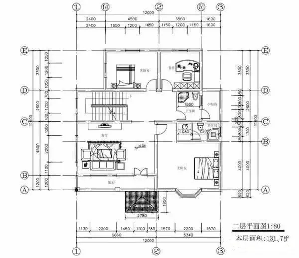
二層平面布局圖
房子沒有天溝,瓦片直接出沿。原因是北方的氣候寒冷,天溝積雪,防水容易凍裂。
別墅施工過程展示:
▼不破不立好像說的就是蓋房子,按照風水先生給掐算的日子,拆房開始了。
.jpg)
真到了要拆老房子的時候,心里還真舍不得,房主的姐弟兄妹幾個都是在這個老房子里長起來的。
.jpg)
房主沒有想到老兩口倒挺敞亮,在老家建個新房子多好,有啥舍不得了?
▼開始放線,挖地基。
.jpg)
房主所在的地段東高西低,從家往東400米以內就是大山,所以地基一定要挖到硬土層,也就是風化層。
.jpg)
房子整體地基1.6米,西側大約1.8米,建在軟硬相同的土層上,房子才夠結實。
.jpg)
▼墊層和地梁用的都是商混,地梁沒有支盒子,磚砌的模子。
.jpg)
.jpg)
房主一共請了十幾個工人常駐施工,對于農村建房施工隊來說,進展不慢。
.jpg)
▼一層開始支模
.jpg)
▼下面需要提醒大家,目前的建筑標準都是雙層雙向的鋼筋,現在農村很多地方還在使用單層布筋,在這方面節省,不符合規定的。
.jpg)
▼水電是房主專門找人設計。
.jpg)
▼一層澆筑當日
.jpg)
▼房主為了父母將來上下樓方便,設計了三跑樓梯。
.jpg)
現澆樓梯
.jpg)
▼一層澆筑完成后只間隔了一天,施工隊就要求開始二層施工,經過商量,可以向上運料,但要隨用隨上,不能過載。
.jpg)
▼二層開始支模
.jpg)
▼二層支模要求比較嚴格,特別是房檐,凈水模。
.jpg)
白色的羅馬立柱已經安裝完畢,整個房子開始有了設計感,別墅的氣派感滿滿。
▼屋頂鋼筋捆扎,依舊是十個圓的鋼筋,雙層雙向。從基礎開始,所有的柱子都和屋頂相連,坡屋面與山墻結合處是斜圈梁。
.jpg)
屋頂整體支模完成。

▼屋頂完成現澆,旁邊的配房也基本完工,效果十分不錯。
.jpg)
▼房主拍得有點遠,可以看到屋頂的掛瓦施工已經開始了。
.jpg)
▼主體完工,效果還不錯哦~
.jpg)
▼外立面施工完成,工藝不得不說好。這幾個北方的師傅經驗十分充足。
.jpg)
建筑設計的配色非常好,生活氣息很夠。
.jpg)
來看看別墅的側面。

兩個配房跟主體的關系也十分協調,這個配房是房主的母親堅持加入的,保持了北方合院式的特色。
▼室內裝飾部分

東西都是房主自己選安置的,簡約溫馨,非常經濟實用。
.jpg)
從室內望向庭院,庭院的綠植,房主想培育好了直接移栽到院子里。
▼建房成本
房主趙先生說,建房大概在是1200元/平米左右,不包括瓷磚、門窗。主樓240平米,30萬左右,瓷磚加門窗估計6—7萬,前后總共38萬左右。
結言:在城市買一套商住房不容易,沒個大幾百萬肯定拿不下來。而在農村不到四十萬竟然就建起來這么不錯的別墅。您覺得如果家里有宅基地,還舍得讓它空著么?
.jpg)
本文由別墅圖紙超市編輯發布,如需了解更多,可登錄網站主頁http://www.qingshandinghua.com/,或者撥打我們的免費電話400-8080-889在線咨詢。
>>>>推薦閱讀:農村建房就要大氣,看年輕小伙20萬自建豪宅!
>>>>推薦閱讀:農村二層帶陽臺小別墅,外觀簡潔又大方
>>>>推薦閱讀:6款占地不足100平的二層農村別墅設計圖,小宅基地的看過來











