6套帶旋轉樓梯農村自建別墅,大氣有品位,看過的都說好
關于旋轉樓梯,很多人都對它的外形非常推崇,擁有曲折的線條,弧度優美,既能打通垂直空間,本身也如同一件藝術品般奢華,只要裝修得當簡直大氣的不像話。今天小編給大家推薦的6套自建別墅都帶旋轉樓梯,保證滿足你心目中理想別墅的樣子!
復式三層旋轉樓梯別墅

戶型基本信息
編號: DC0326
結構形式: 框架結構
開間: 16.5米 進深: 13.8米
占地面積: 229.61平方米
建筑面積: 486.15平方米
主體造價: 50萬以上
首層戶型:

圖紙預覽:



一 層:堂屋、客廳(中空)、臥室(附書房,衛生間)、2臥室、廚房、餐廳、衛生間、涼亭
二 層:起居室(附露臺)、臥室(附衛生間)、2臥室、衛生間、露臺
三 層:健身廳、2臥室、衛生間、2露臺
三層帶旋轉樓梯別墅

戶型基本信息
編號: DC0151
結構形式: 框架結構
開間: 11.7米 進深: 12米
占地面積: 138.16平方米
建筑面積: 352.46平方米
主體造價: 30-35萬
首層戶型:

圖紙預覽:


一 層:客廳、臥室(附衛生間)、臥室、廚房、餐廳、衛生間
二 層:客廳、臥室(附衛生間)、臥室、兒童房、棋牌室、衛生間、露臺
三 層:臥室(附書房)、臥室、衛生間、露臺
復式二層帶旋轉樓梯別墅

戶型基本信息
編號: DC0337
結構形式: 磚混結構
開間: 14.25米 進深: 15.3米
占地面積: 184.44平方米
建筑面積: 469.20平方米
主體造價: 40-45萬
首層戶型:

二層戶型:

一 層:門廳、客廳(中空)、臥室(附衛生間)、臥室、廚房、餐廳、洗衣房、衛生間
二 層:起居室、臥室(附衣帽間,衛生間)、臥室(附書房,衣帽間)、臥室、書房、衛生間
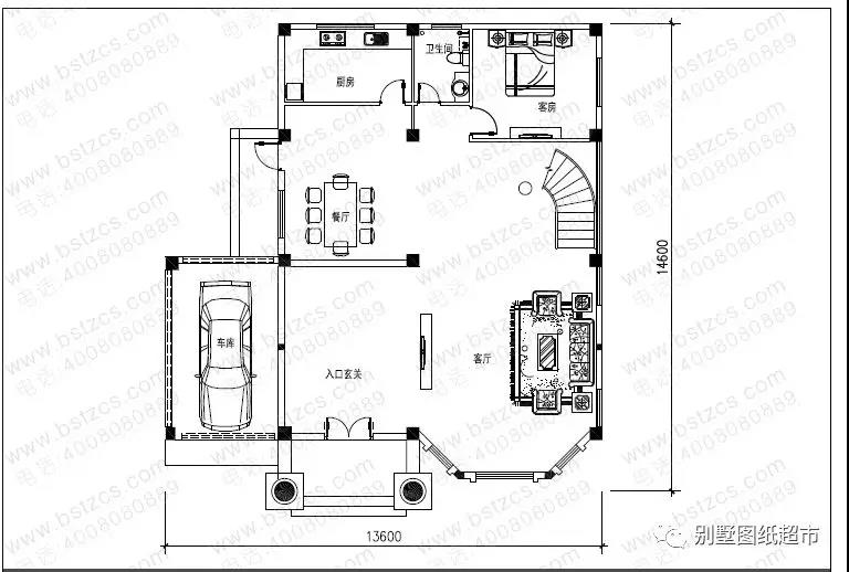
三層大氣旋轉樓梯復式別墅

戶型基本信息
編號: DC0226
結構形式: 框架結構
開間: 13.6米 進深: 14.6米
占地面積: 156.09平方米
建筑面積: 393.15平方米
主體造價: 36-42萬
首層戶型:

圖紙預覽:


一 層:入口玄關、客廳(中空)、臥室、廚房、餐廳、衛生間、車庫
二 層:主臥(附書房,衛生間,陽臺)、臥室(附書房,陽臺)、臥室、衛生間
三 層:活動廳(附露臺)、主臥(附衛生間,2露臺)、臥室(附書房,陽臺)、臥室、衛 生間
三層大氣旋轉樓梯復式別墅


戶型基本信息
編號: DC0216
結構形式: 框架結構
開間: 12.9米 進深: 9.8米
占地面積: 124.19平方米
建筑面積: 337.42平方米
主體造價: 35-40萬
首層戶型:

圖紙預覽:



一 層:門廳、客廳(中空)、2臥室、廚房、餐廳、衛生間
二 層:起居室、2臥室、棋牌室、衛生間
三 層:主臥(附書房,衣帽間,衛生間,陽臺)、臥室、洗衣房、衛生間、露臺
復式四層旋轉樓梯別墅

戶型基本信息
編號: DC0364
結構形式: 框架結構
開間: 12.7米 進深: 12.76米
占地面積: 164.8平方米
建筑面積: 578.08平方米
主體造價: 50萬以上
首層戶型:

二層戶型:

三層戶型:

四層戶型:

一 層:堂屋、客廳(中空)、臥室(附衛生間)、廚房、餐廳、衛生間
二 層:起居室、臥室(附衛生間,陽臺)、臥室(附陽臺)、臥室、衛生間
三 層:健身房(附陽臺,露臺)、臥室(附衛生間,陽臺)、臥室(附陽臺)、臥室、衛生間
四 層:臥室(附衛生間,陽臺)、臥室(附陽臺)、臥室、衛生間、露臺
每一款戶型布局都很合理實用,有框架結構或者磚混結構的,有客廳挑空的,有帶車庫的...這么多好戶型,對于準備建房的你來說,總有一款適合你的吧!
.jpg)
本文由別墅圖紙超市編輯發布,如需了解更多,可登錄網站主頁http://www.qingshandinghua.com/,或者撥打我們的免費電話400-8080-889在線咨詢。
>>>>推薦閱讀:精選10款帶煙囪設計自建別墅,鄉村風味最經典!
>>>>推薦閱讀:11款一層農村別墅,造價便宜戶型好,都是值得建的好房子!
>>>>推薦閱讀:20款經典雙拼別墅,各有亮點,兄弟建房選它們絕對錯不了!











