6套11×12米的農村別墅大熱戶型,挑一套年后就建!
還有20多天就過年了,很多年后想開工建房的業主都想把定建房圖紙這件事推到年后,其實過完年定好開工吉日,留給業主挑選圖紙的時間就不多了,而建房圖紙是大事,所以各位自建房業主一定要給自己留足時間慢慢挑!今天小編給大家推薦6款11×12米的農村別墅,大家看看有沒有喜歡的!
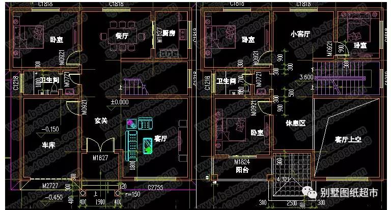
復式三層帶車庫簡歐小別墅

此款別墅為磚混結構的復式三層,開間11.7米,進深11.1米,占地面積125.93平方米,建筑面積303.96平方米,主體造價為24-28萬,此款圖紙編號: DC0229。
首層戶型圖:

圖紙預覽:


一 層:客廳(中空)、臥室、廚房、餐廳、衛生間、車庫
二 層:小客廳、臥室(附陽臺)、2臥室、衛生間
三 層:小客廳、臥室(附陽臺)、2臥室、衛生間、露臺
建房實拍

漂亮三層復式歐式別墅


此款為三層的框架結構別墅,開間11.7米,進深11.2米,占地面積130.04平方米,建筑面積336.44平方米,主體造價35-40萬,此款圖紙編號: DC0232。
首層戶型:

圖紙預覽:

一 層:客廳(中空)、臥室、棋牌室、廚房、餐廳、儲藏室、衛生間
二 層:小客廳、臥室(附衛生間)、2臥室、衛生間
三 層:活動室、臥室(附衛生間)、臥室、衛生間、露臺
建成實拍

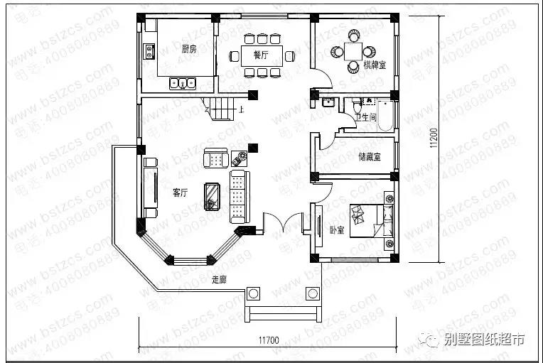
漂亮復式三層帶露臺簡歐小別墅

此款別墅,開間11米,進深12米,占地面積138.34平方米,建筑面積351.69平方米,主體造價30-35萬,此款圖紙編號: DC0361。
首層戶型圖:

一 層:有門廳,客廳為中空設計,有1個臥室帶單獨衛生間,廚房、餐廳、還有一個公用衛生間,生活很方便,布局也很簡單明朗。
二層戶型圖:

二層:帶一個小客廳,三個臥室,一個公用衛生間,其中一個臥室帶單獨衛生間和陽臺,還有一個臥室帶書房。
三層戶型圖:

三層:健身房、臥室(附衛生間)、臥室、衛生間、露臺,大露臺滿足晾曬和休閑的需求。
農村二層帶陽臺小別墅

此款別墅,開間11.4米,進深12米,占地面積138.78平方米,建筑面積309.63平方米,主體造價在28-32萬之間,此款圖紙編號: DC0315。
首層戶型圖:

該戶型的立體感和層次感都較強,能夠得到這么多戶主的青睞與自身的顏值和內涵是分不開的,主體造價也比較常規化,30萬左右,也是大多數計劃建房人能夠接受的范圍。
圖紙預覽:


一 層:門廳、客廳、臥室(附衛生間)、臥室、廚房、餐廳、衛生間
二 層:起居室、臥室(附書房,衛生間,陽臺)、臥室(附陽臺)、臥室、衛生間
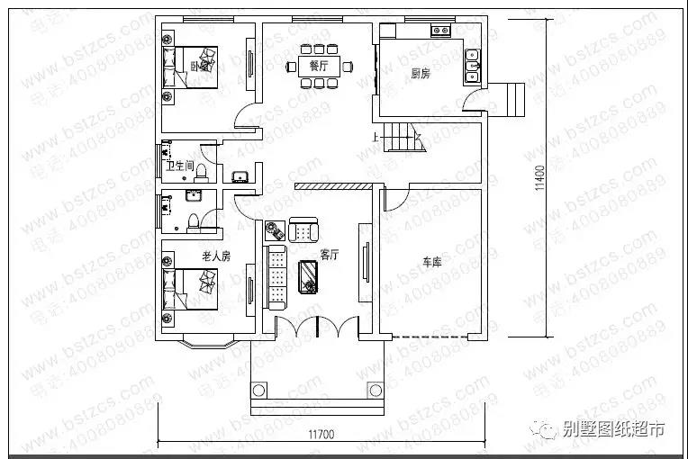
三層帶車庫新農村別墅


此款別墅,開間11.7米,進深11.4米,占地面積138.98平方米,建筑面積376.37平方米,主體造價為26-32萬之間,此款圖紙編號: DC0066。
首層戶型圖:

一層入戶處用羅馬柱裝飾,設有兩個臥室一個公用衛生間,其中一個臥室帶單獨衛生間、其中廚房、餐廳、車庫都配備,既不違背風水常理,又很方便實用。
圖紙預覽:


一 層:客廳、臥室(附衛生間)、臥室、廚房、餐廳、衛生間、車庫
二 層:客廳、臥室(附陽臺)、臥室(附衛生間)、3臥室、衛生間
三 層:客廳、臥室(附衛生間)、2臥室、衛生間、露臺
新農村二層帶車庫小別墅

此款別墅,開間12米,進深10.8米,占地面積:130.23平方米,建筑面積260.46平方米,主體造價為主體造價19-24萬,此款圖紙編號: DC0214。
首層戶型圖:

圖紙預覽:


一 層:客廳、臥室、廚房、餐廳、衛生間、車庫
二 層:客廳(附陽臺)、主臥(附衛生間)、3臥室、棋牌室、衛生間
.jpg)
本文由別墅圖紙超市編輯發布,如需了解更多,可登錄網站主頁http://www.qingshandinghua.com/,或者撥打我們的免費電話400-8080-889在線咨詢。
>>>>推薦閱讀:21款別墅定制設計送你參考,開春建個美麗家
>>>>推薦閱讀:11套最新設計農村自建別墅定制款,專為新農村設計!
>>>>推薦閱讀:10款復式客廳自建別墅,大氣好戶型,開春建房不用愁!











