二層田園歐式小別墅,建成效果簡單自然又大氣
將田園歐式風格形容為農村別墅的典型專屬風格真不為過。它以簡單大氣又自然的形象讓人無法自拔。它像高貴的王子,同時又散發著親近的氣息;它像鄰家小孩,卻又不失經典內涵;它讓人一眼就不能忘,只想投入它懷抱。就像今天這款二層田園歐式小別墅實拍,帶著經典田園歐式別墅的恢宏大氣外觀,又帶著清新自然的質感,優質的選材及工藝,造就了這棟別墅非凡的品質,讓周圍的相鄰都為之稱贊。
施工案例效果實拍
.jpg)
.jpg)
.jpg)

原設計效果圖圖紙

圖紙屬性
編號:DC0299 層數:二層 結構形式:框架結構 主體造價:30-36萬
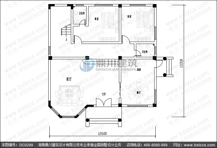
開間:12.6米 進深:13.318米 占地面積:161.48平方米 建筑面積:381.05平方米
圖紙內容
建 筑 圖:建筑施工總說明、建筑構造設計說明、一層平面圖、二層平面圖、屋頂平面圖、正立面圖、背立面圖、左立面圖、右立面圖、1-1剖面圖、樓梯大樣圖、門斗詳圖、節點大樣圖、門窗表
結 構 圖:結構設計總說明、大樣圖、基礎平面布置圖、基礎柱定位圖、一層柱定位圖、二層柱定位圖、頂層柱定位圖、一層底梁平法施工圖、一層頂梁平法施工圖、二層頂梁平法施工圖、頂層梁平法施工圖、一層底板結構平面圖、一層頂板結構平面圖、二層頂板結構平面圖、頂層板結構平面圖、樓梯配筋圖、基礎剪力墻配筋圖、一層剪力墻配筋圖、二層剪力墻配筋圖、頂層剪力墻配筋圖
給排水圖:給排水設計總說明、一層給排水平面圖、二層給排水平面圖、屋頂給排水平面圖、衛生間大樣圖、給排水系統圖
電 氣 圖:電氣設計說明、設備材料表、等電位聯結做法、配電系統圖、一層照明平面圖、二層照明平面圖、一層插座平面圖、二層插座平面圖、一層弱電平面圖、二層弱電平面圖、基礎接地平面圖、屋頂防雷平面圖
設計功能
一 層:門廳、客廳、臥室(附衛生間)、臥室、廚房、餐廳、衛生間
二 層:起居室、臥室(附書房,露臺,衣帽間,衛生間)、2臥室、衛生間
首層房屋戶型設計圖

設計圖預覽


此款圖紙有施工圖65張,效果圖1張。地址:http://www.qingshandinghua.com/goods-299.html
.jpg)
本文由別墅圖紙超市編輯發布,如需了解更多,可登錄網站主頁http://www.qingshandinghua.com/,或者撥打我們的免費電話400-8080-889在線咨詢。
>>>>推薦閱讀:二層帶雙露臺小別墅,造型超美,十里八鄉都夸贊!
>>>>推薦閱讀:自建三層簡歐風格別墅,造價不過30萬卻能讓別墅經典又耐看
>>>>推薦閱讀:想建房的朋友們注意啦!11款三層歐式自建別墅設計圖供你選擇











