回鄉造這樣一個院子,過一過記憶里“從前慢”
人好像都喜歡求而不得的這種感覺。小的時候想要離開農村,去往燈紅酒綠的大城市里生活,而當我們真的長大來到城市里定居后,又開始懷念起農村悠閑自在的日子。“從前慢”的童年記憶里,靜默的時光載著兒時的歡樂悄然遠去。人的欲望和夢想,總是會隨著年齡的增長而改變。就像我們從知青年代走過來的上一輩人,對于“從前慢”的生活,更是情有獨鐘,念念不忘。

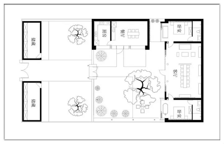
搪瓷缸小院正是基于這樣的心理需求下,通過重新改造與設計,給人帶來意想不到的魅力。在這個一氣呵成的進深格局里,寬敞的庭院占據了大半個空間,儲藏室、廚房、餐廳以及后面的客廳和臥室,都隨著規整的空間漸次鋪陳開來。動線流暢,功能清晰,承載起小院全部的生活。這座位于北京大興半壁店的知青小院,就有著慢生活的情懷,以及知青年代遺留下來的獨特味道。庭院,大樹,搪瓷缸,老式大梁車子,煤油燈,還有那充滿年代感的黑白電視機,勾起了人們無限的回憶與向往。
搪瓷缸小院平面布局
.jpg)
對稱工整的院落組合,雖然在布局上符合現代生活的需求,但由于長期無人居住,早已變得雜草叢生,展現出一副破敗、冷清的模樣。設計師李帥經過一系列設計讓小院重新煥發以往的生機。他把原先的門面拆掉,改用磚瓦結構搭建起來,然后將大門兩側的部分墻體往外凸出,盡顯宅院的氣勢與威嚴。門前改造對比滿眼荒草的院子里,經過一番細心的收拾和整理后,視覺上清爽了許多,庭院和過道一目了然。兩間結構完整的老磚房,原先存在著陰暗、潮濕的缺陷,但設計師采用了一個巧妙的辦法,將厚實的部分外墻拆除掉,然后用更為輕盈通透的玻璃移門來代替。這樣一來,自然光線順勢進入室內空間,采光和通風問題一并得到了解決。整個小院一共擁有兩間臥室,每一間都精心打造出完美的氛圍。其中一間主臥,素面朝天的床頭背景墻保留了原始粗糙的水泥質感,但設計師通過豐富的光影變化,和一截充滿禪意的枯樹枝來營造意境,最終形成別具一格的睡眠空間。另一間主臥的背景墻保留了同樣的基底,但用一幅色彩鮮明的裝飾畫加以點綴,令整個空間更多地彌漫出藝術的氣息。
房間的頂部刻意保留了傳統的木梁結構,與現代簡約的大白墻混搭起來,碰撞出一種亦古亦今的美感。老樹還是那棵老樹,但破舊的房屋已然舊貌換了新顏。夏天的傍晚,一家人坐在樹下聊天喝茶,偶一抬頭,景色獨好,生活依稀是當年的模樣。經過翻新設計后的小院,農家風情依然不減。生了銹的苞玉米機、窗沿上依次排開的大蒜頭、老式自行車上懸掛的辣椒串......回望從前,對話兒時,搪瓷缸小院的魅力就在于以純真的情懷和事物,帶人們穿越到遙遠的那個年代......“從前慢”的主題,幾乎滲透在院中的每個角落。就像這面老房中的圓形鏤空墻,一頭連接著古樸雅致的茶室,另一頭連接著墻上寫滿詩的客廳。傳統與現代的完美結合,使開闊的空間擁有了更為豐富的內涵。暖黃色的燈光柔和而溫馨,讓人盡享歲月靜好的安寧意境。而墻壁的另一端,卻展現出一幅熱鬧、激烈的場景。
為了讓整個頂部看起來更加和諧,設計師沒有選擇富有裝飾感的主燈,還是選擇了隱藏式照明設計,以保留這個空間的簡潔感。家居細節的微妙搭配,形成了一個獨特的格調空間,守著溫暖的燈光和充滿自然氣息的氛圍看一本好書,喝一杯香茶,是一件多么幸福的事情!落地窗前的浴缸,知青范兒的洗漱區,為客人提供了非常特別的居住體驗。在這個主張慢生活的空間里,一器一物盡是時光的溫柔。
愿歲月不老,初心依舊,再見仍是當年的模樣。
.jpg)
本文由別墅圖紙超市編輯發布,如需了解更多,可登錄網站主頁http://www.qingshandinghua.com/,或者撥打我們的免費電話400-8080-889在線咨詢。
>>>>推薦閱讀:兩個女孩為自己打造了一個植物花房
>>>>推薦閱讀:這個老外用他的巧手改造,驚艷了陽朔舊縣村的舊時光
>>>>推薦閱讀:如果鄉村庭院設計都如青燈山舍,悠悠世界我自獨立!











